Willow
Willow
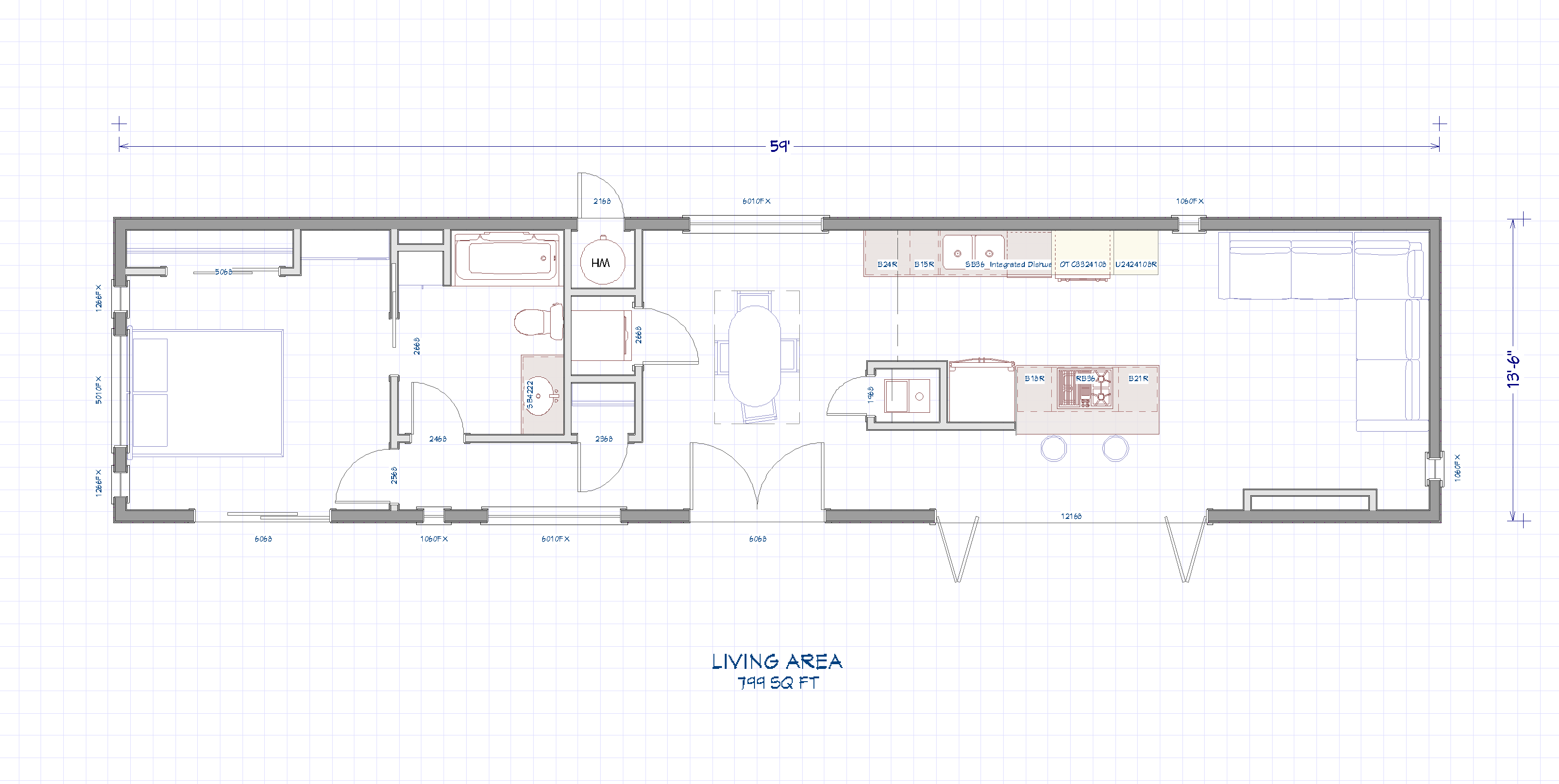
1
Beds
1
Baths
799 SF.
Dimensions
N/A +SF.
Patio
210,644
Price
1
Beds
1
Baths
799 SF.
Dimensions
210,644
Price

Project Estimate Breakdown

Per ItemCost

Model Home Build Cost * All Catalog Finishes Included (Upgrades Exempt)

$210,644

Shipping Cost Estimate (Santa Cruz)

$8,700

Foundation Cost

$23,600

Home Set Cost

$15,000

Utility Connection Cost

$1,500

Interior Close Up Cost

$5,000

Exterior Close Up Cost

$2,000


Project Total (Turn-key home on a foundation only)


$266,444

Price Per SQ.FT.

$333.47

Disclaimer:

Each property and project are unique. Other onsite/offsite development costs not included in pricing until further review. Other costs may include, but are not limited to:
  • Excavation
  • Septic/sewer
  • Utilities
  • Underground work
  • Decks / Stairs / Handrails
  • Gutters
  • Permits
  • Flat work (sidewalks, driveways, landing pads, patios)

* On-site costs are subject to change.

Choose your finishes

Explore our finishes with the Interactive Design Board Browse multiple options, mix and match your favorites, and bring your dream home to life, one detail at a time.

Models
Let's Get Started

Please Select the form that applies to you by selecting the appropriate tab above.

Contact info

We are based in Santa Cruz County ,
California

Tel: (831) 888-Home
Email: info@joylinehomes.com

Business Hours: 9am - 6pm